Electrofusion Tees
Black Electrofusion Equal Tee / T / PN16 / SDR11
Friatec's PE100 Injection moulded electrofusion Tees are suitable for fusing pipes from SDR11 to SDR17.6 Electrofusion sockets feature all the same performance benefits found in black couplers, along with built-in reinforcement, so no de-ration is required.
NOTE: The pipe ends and sockets must be prepared in accordance with the general installation instructions using a spigot mechanical peeler, 90% Isopropyl alcohol wipes and we recommend using the Friamat fusion control unit to achieve correct preheating and logging the full range of weld data available.
|
Product Code |
dn |
D1 |
L |
L1 |
L2 |
Z1 |
Z2 |
Availability in Hong Kong |
|
P3316.122.110 |
110 |
142 |
355 |
87 |
48 |
90.5 |
177 |
8-12 weeks |
|
P3316.122.160 |
160 |
200 |
430 |
96 |
48 |
119 |
215 |
8-12 weeks |
|
P3316.122.200 |
200 |
251 |
550 |
115 |
54 |
160 |
275 |
8-12 weeks |
|
P3316.122.225 |
225 |
280 |
580 |
118 |
63 |
172 |
290 |
8-12 weeks |
Black Electrofusion Equal Tee / T XL / PN16 / SDR11
Friatec's PE100 XL range of electrofusion Tee's are suitable for fusing pipes from SDR11 to SDR17.6 Electrofusion sockets feature all the same performance benefits found with black couplers along with built-in reinforcement, so no de-ration is required. XL fittings have separate fusion zones and a fused eyebolt for ease of handling on site.
NOTE: The electrofusion socket and pipe ends must be prepared in accordance with the general installation instructions using a spigot mechanical peeler, 90% Isopropyl alcohol wipes and we recommend using the Friamat fusion control unit to achieve correct preheating and logging the full range of weld data available.
|
Product Code |
dn |
D1 |
L |
L1 |
L2 |
Z1 |
Z2 |
Availability in Hong Kong |
|
P3316.122.250 |
250 |
310 |
770 |
128 |
80 |
514 |
257 |
8-12 weeks |
|
P3316.122.280 |
280 |
350 |
905 |
139 |
84 |
627 |
316 |
8-12 weeks |
|
P3316.122.315 |
315 |
396 |
940 |
150 |
80 |
640 |
322 |
8-12 weeks |
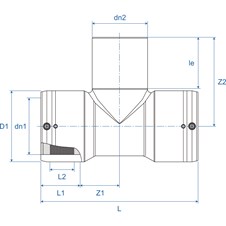
Black Tees / T RED / PN16 / SDR11
Friatec's PE100 Injection moulded electrofusion Tees are suitable for fusing pipes from SDR11 to SDR17.6 Electrofusion sockets feature all the same performance benefits found in black couplers, along with built-in reinforcement, so no de-ration is required.
NOTE: The pipe ends and sockets must be prepared in accordance with the general installation instructions using a spigot mechanical peeler, 90% Isopropyl alcohol wipes and we recommend using the Friamat fusion control unit to achieve correct preheating and logging the full range of weld data available.
| Product Code | dn1 | dn2 | D1 | L | L1 | L2 | le | Z1 | Z2 | Availability in Hong Kong |
| P3316.22.160110 | 160 | 110 | 203 | 390 | 96 | 48 | 82 | 198 | 206 | 8-12 weeks |
Black Tees / T RED XL / PN16 / SDR11
| Product Code | dn1 | dn2 | D1 | L | L1 | L2 | le | Z1 | Z2 | Availability in Hong Kong |
| P3316.22.250110 | 250 | 110 | 310 | 770 | 128 | 80 | 82 | 514 | 250 | 8-12 weeks |
| P3316.22.250225 | 250 | 225 | 310 | 770 | 128 | 80 | 120 | 514 | 285 | 8-12 weeks |
| P3316.22.280110 | 280 | 110 | 350 | 905 | 139 | 84 | 82 | 627 | 265 | 8-12 weeks |
| P3316.22.280225 | 280 | 225 | 350 | 905 | 139 | 84 | 120 | 627 | 300 | 8-12 weeks |
| P3316.22.315110 | 315 | 110 | 396 | 940 | 150 | 80 | 82 | 640 | 287 | 8-12 weeks |
| P3316.22.315225 | 315 | 225 | 396 | 940 | 150 | 80 | 120 | 640 | 327 | 8-12 weeks |
